This is the Riley's schoolhouse. I want to talk about this project at length (though just look at the pictures if you prefer) because it shows something about how we think about design.
The Riley's house sits high on a hill, with lovely
Vermont views, next to a beautiful white country church. Like most one room
schools, it was converted into a house many years ago, and has been renovated
several times since then. Yet it still had the flavor of a country school, a
lot of the original materials, and one huge, wonderful central room, the old
schoolroom, with those enormous windows along two walls.
![]() |
| The Spiral Staircase was a big problem. Photo by Susan Riley |
The house had some basic problems. The upstairs was
Susan's painting studio, but it barely worked. There was little storage. With
little cross-ventilation, it got overheated in summer. She wanted to be able to
have open studios up there, but the only access was the treacherous spiral
staircase in the photo. They were currently sleeping upstairs and using a
minimalistic bathroom downstairs. They wanted a downstairs bedroom, with a
decent accessible bathroom.
![]() |
| Existing Kitchen |
Downstairs, the kitchen work area was tiny, and barely
functional. The cabinets and storage were minimal. The stove actually stuck out
into the hallway. The back bedroom was barely heatable, and the atrium door to
the outside turned the space into a hallway. The garage space didn't work as a
garage, and flooded on an annual basis.
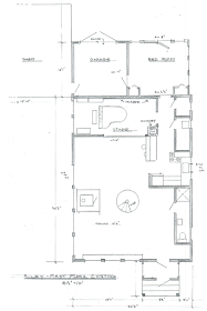
![]() |
| Existing Plan |
Right in the middle of the main room, was this spiral staircase, dangerous, awkward to use, and not really legal from an egress point of view. I wanted it gone!
It boiled down to one question: could we make the house
into a place where they could live and work for the next twenty years, or
should they be moving to a completely different home?
That option made me sad, because the schoolhouse was such
a wonderful place, and had features, and a feeling, you would never find in
another house.
The first idea was to design an addition to provide an
accessible studio where Susan could work and visitors and clients could see her
work. This wasn't a bad idea but was expensive and had permitting issues.
After a lot of discussion, we learned the basic truth of
the house: It had more than enough space, but was poorly laid out. It was a big
house that functioned like a small, cramped uncomfortable house. If we fixed
the layout, there was enough room without adding new space.
The upstairs would work fine as Susan's studio with
better windows and ventilation, a proper staircase, and lots of storage for
artwork. Downstairs, though, more drastic measures were called for, but they
would make a huge difference.
It would be a massive, messy project, but cheaper than
building an addition, and we hoped cheaper and better than moving. I felt that
if we thought about it enough, and drew and discussed enough floor plans, we
could retain all the charm and style of the space, but make it function as it
should.
A project like this can easily get out of hand. Wherever
possible we leave things alone. For example, the large stage that Dick used as
his office – he's a choral director, and a grand piano is basic equipment – was
perfect as is. We went to great lengths to save what we could: a tile shower
downstairs, some built-in closets, old floors, and huge amounts of old bead board.
I hoped when we were done, it would look as if it had
been like this for years.
![]() |
| Revised Plan |
The basic moves:
![]() |
| It wasn't easy to move this hall, but it made room for a bathroom and a much bigger kitchen, without messing up the stage area. |
Move the downstairs hallway: Moving the hall was the key.
This wasn't easy – there was a chimney in the way, and we had to shorten up the
stage area. But it made room for a real bathroom, and allowed us to expand the
kitchen. It made the back bedroom work better also.
Stairs: Getting rid of the spiral, and building a real
staircase in a better location at the edge. It was tricky to make all the
head rooms work. It was a matter of inches all the way, particularly leaving
room for the bathroom tucked under the stairs.
![]() |
| The new staircase is along the wall as you enter, and rises below an existing dormer upstairs. |
New Kitchen.
The new kitchen was styled to go with the 19th century
bead board schoolhouse vibe, but had many of the modern devices we usually do:
lots of drawers, open shelves, good provisions for trash and composting, and a
nice slate counter at the sink, with draining shelves above.
Garage/to utility room: A non-functional garage, which
flooded each year, got some foundation work and a new floor, and became a
laundry, storage space, and utility room, with a modern boiler.
Air and Light: Upstairs, aside from the staircase, the
big changes were adding a large new triple casement to maximize light and air
movement in the front, and replacing old double hung windows in the rear of the
building with new casements. Also, lots of storage for art-work. Moving the
spiral staircase made the space a lot bigger.
![]() |
| The rebuilt studio, with new window providing plenty of ventilation. Photo by Susan Riley |
![]() |
| Simple Flat Files tucked into the eaves, with a “gallery shelf” above. |
Photos by Nicky Morris, except as noted.














No comments:
Post a Comment
Comments are moderated before being posted.